Voir tous les résultats
Description
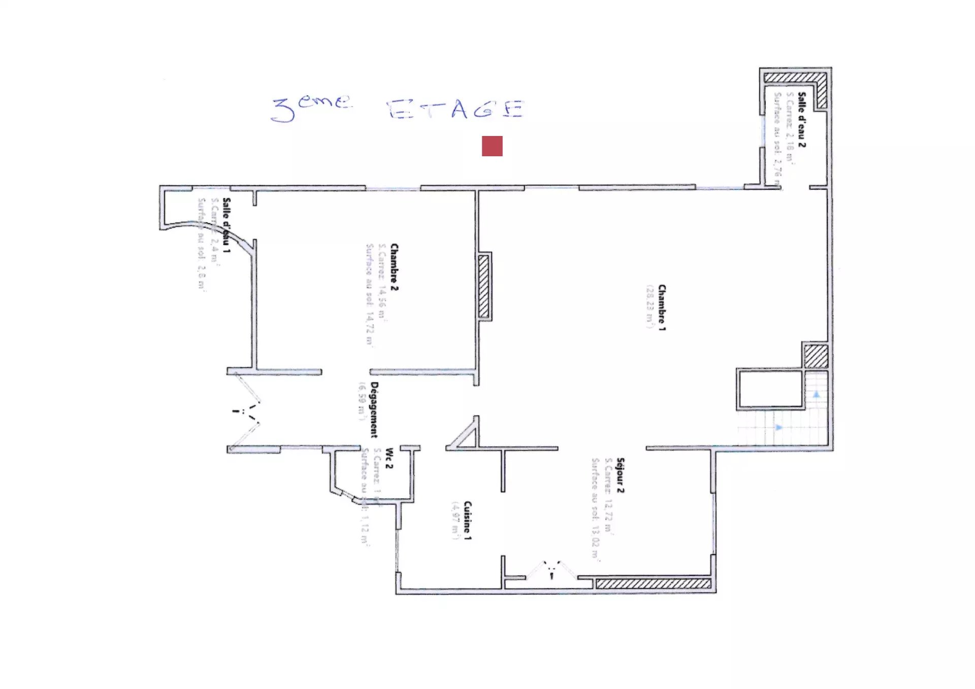
Dans une copropriété de charme datant de 1900, découvrez ce duplex traversant de 150 m², au calme absolu, entre deux jardins et sans aucun vis-à-vis. Actuellement issu du regroupement de deux lots (toujours distincts juridiquement), l’appartement offre un fort potentiel de rénovation ou de redivision. Au 2ᵉ étage : un salon avec poutre apparentes, une chambre, une salle de douche, une vaste pièce de séjour traversante avec trémie d’escalier, ainsi qu’une petite cuisine. Au 3ᵉ étage : un second séjour, une chambre avec dressing et salle de bains, ainsi qu’une deuxième cuisine. Avec ses volumes, sa luminosité et ses nombreuses possibilités d’aménagement, ce bien constitue une rare opportunité dans un environnement recherché. Un projet idéal pour donner vie à un bel appartement familial ou créer deux unités indépendantes.Détails
Sous-type : Appartement
Etat général : À rafraîchir
Année de construction : 1900
Standing : Standing
Localisation : Paris 6ème
Surface : 148.06m²
Ètages : 2
Loi Carrez : 148.6 m²
Pieces : 6
Exposition : Sud-est
Accès chauffage : Individuel
Type de Chauffage : Gaz
Mécanisme de chauffage : Radiateur
Accès à l'eau chaude : Individuelle
Surfaces
1 Entrée 6.78m²
1 Séjour 14.2m²
1 Débarras 2.4m²
1 Salon 18.01m²
1 Chambre 15.77m²
1 Salle de bains 6.71m²
1 Dressing 5.65m²
1 Placard 0.75m²
1 Cuisine 4.11m²
1 Toilettes 1.03m²
1 Séjour 28.23m²
1 Chambre 12.72m²
1 Cuisine 4.97m²
1 Dégagement 6.59m²
1 Toilettes 1m²
1 Chambre 14.56m²
1 Salle de douche 2.4m²
1 Salle de douche 2.18m²
2 Caves
Prestations
Baignoire balnéo, Cheminée, Double vitrage, Internet, Ascenseur
Proximities
Bus, Centre ville, Cinéma, Commerces, École secondaire, Gare, Gare routière, Hôpital/clinique, Métro, Taxi, Université, Gare TGV

















