See all results
Description
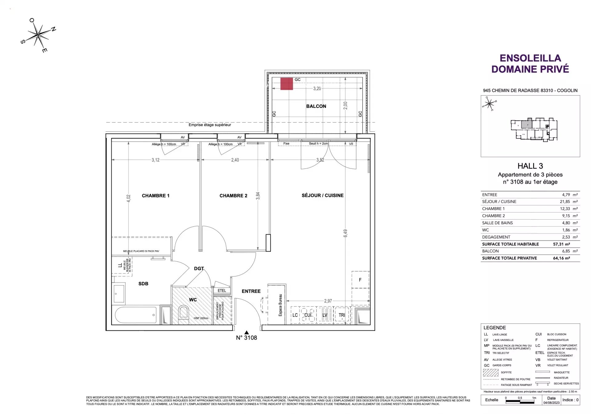
Located in a quiet area of Cogolin, in the heart of the Gulf of Saint-Tropez, this neo-Provencal-style residence offers an ideal setting. Close to the town center, shops, schools and the sea, it also boasts a private swimming pool. The apartment is located on the 1st floor, accessible by elevator. It comprises an entrance hall, living room with open kitchen, balcony, two bedrooms, bathroom, toilet and three parking spaces. Scheduled completion: End 2025. Other lots available: from 1 to 3-bedroom apartments, from €303,000 to €432,000.Details
Sub-type : Apartment
General condition : New
Year of construction : 2025
Location : Cogolin
Surface : 57m²
Floors : 1 / 3
"Carrez" act : 57.31 m²
Rooms : 3
Orientation : North-west
Heating access : Individual
Type of heating : Electric
Hot water access : Collective
Areas
1 Living/dining/kitchen area 21.85m²
1 Bedroom 12.33m²
1 Bedroom 9.15m²
1 Balcony 6.85m²
Services
Electric car terminal, Double glazing, Fence, Outdoor lighting, Condominium garden, Disabled access, Lift, Optical fiber, Digicode, Intercom, Electric gate, Videophone, Condominium pool
Proximities
Airport, Golf, Town centre, Shops, Sea, Beach
Tags
9






