See all results
Description
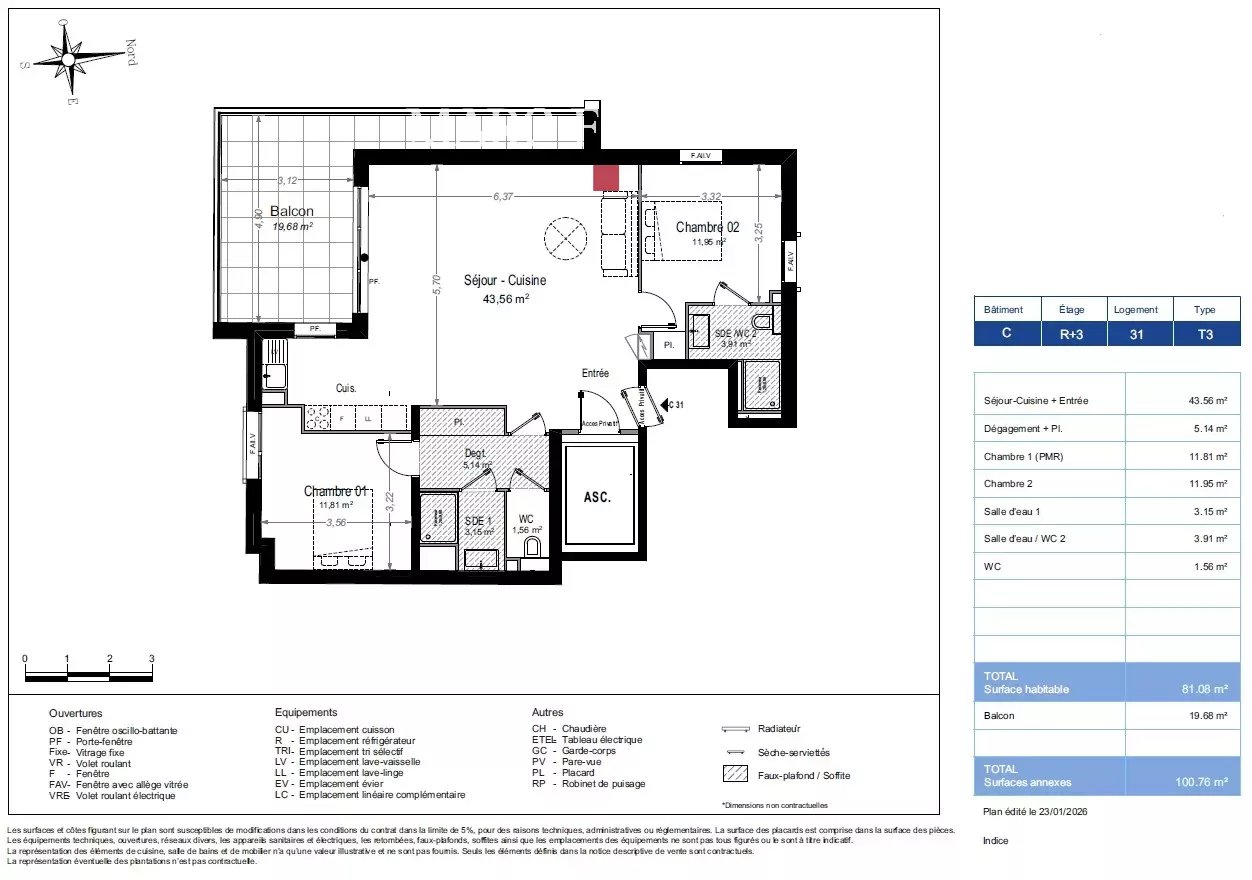
Juan-les-Pins — the timeless charm of the French Riviera, now entering a new era. Ideally located in the heart of the Gulf of Juan, in the immediate continuation of Cap d’Antibes, the iconic seaside resort of Juan-les-Pins is currently experiencing an impressive revival. Major recent and upcoming projects are transforming and enhancing the resort, restoring it to its former prestige. Discover a new collection of brand-new apartments within this landmark residence, ideally positioned in the very center of the resort, directly on the seafront. Located on the 3rd floor, this elegant 2-bedroom apartment offers 81 sqm of living space, complemented by 20 sqm of balconies and open views over the sea. The apartment comprises: ✅ Spacious living area with open-plan kitchen ✅ 2 bedrooms ✅ 2 shower rooms ✅ Separate WC ✅ Balcony ✅ Private elevator access directly to the apartment ✅ Underground parking space 📅 Estimated completion: Q4 2028 Other apartments are available, from studio to 3-bedroom units, with prices ranging from €275,000 to €2,415,000. Direct developer prices — no additional agency fees.Details
Sub-type : Apartment
General condition : New
Year of construction : 2028
Standing : Luxury
Location : Juan-les-Pins
Surface : 81.08m²
Floors : 3
"Carrez" act : 81,08 m²
Rooms : 3
Orientation : South
Heating access : Individual
Type of heating : Heat pump
Heating mechanism : Convector, Air-conditioning
Hot water access : Individual
Areas
1 Living/dining/kitchen area 43.56m²
2 Bedrooms
1 Balcony 19.68m²
Services
Air-conditioning, Double glazing, Aluminum window, Sliding windows, Simple flow ventilation, Electric shutters, Outdoor lighting, Condominium garden, Disabled access, Lift, Optical fiber, Digicode, Videophone
Proximities
Airport, Highway, Bus, Town centre, Movies, Shops, Day care, Primary school, Secondary school, Daycare, Train station, Bus hub, Golf, Hospital/clinic, Doctor, Sea, Convention center, Park, Public parking, Public pool, Beach, Sea port, On main road, Sport center, Supermarket, Taxi, Tennis
Tags
9, 14







