See all results
Description
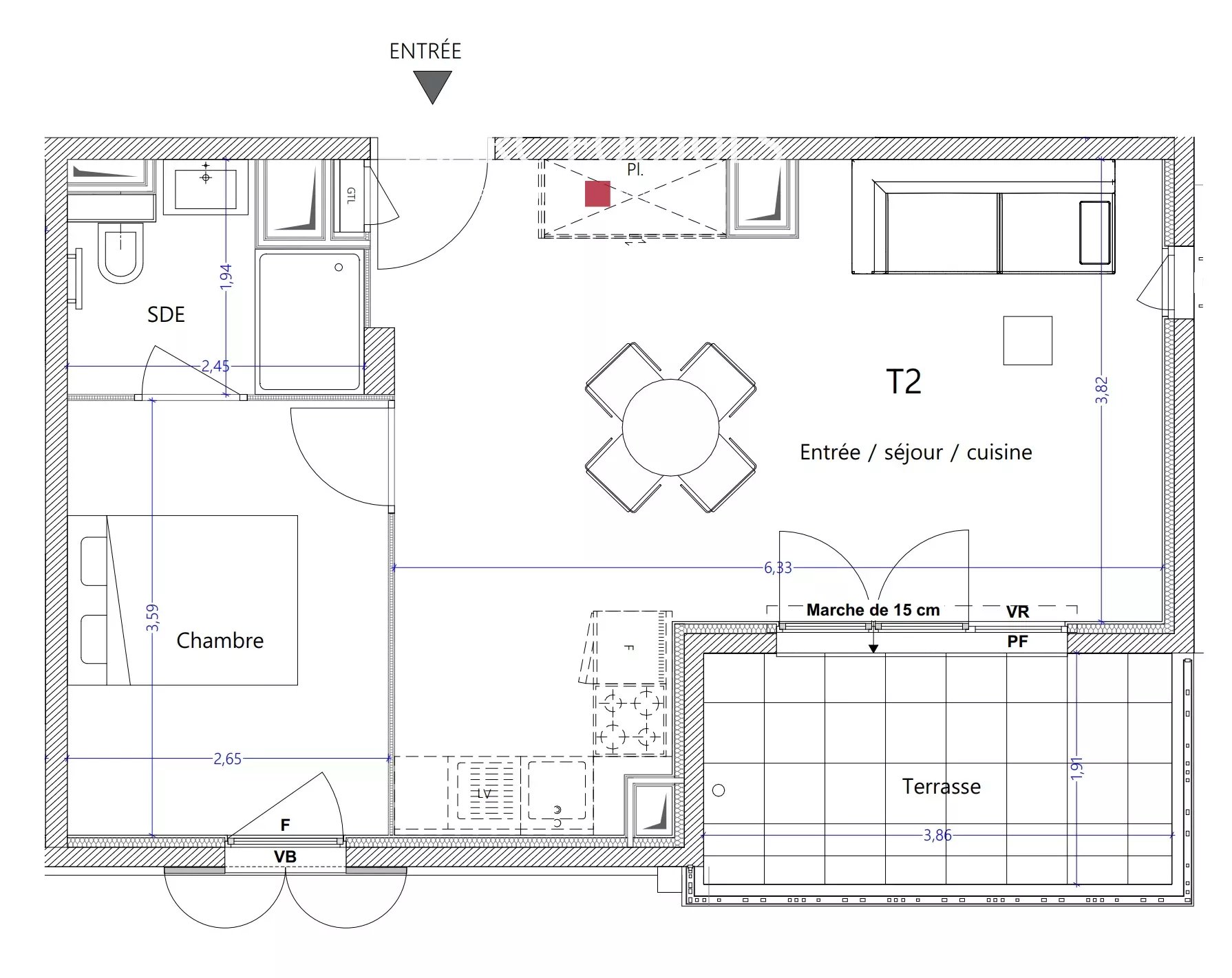
An intimate, elegant residence ideally located to the west of Antibes, in a quiet residential area just 10 minutes from the historic center and close to shops, schools and transport. Just 10 minutes from Sophia-Antipolis and 18 minutes from Nice Côte d'Azur airport, the residence benefits from a strategic location, perfectly suited for a primary or secondary residence, or for rental investment. The apartment is located on the 1st floor. It comprises an entrance hall, a living room with open kitchen, a bedroom, a shower room with toilet, a terrace and a basement parking space. Project completed : 4Q 2027.Details
Sub-type : Apartment
General condition : New
Year of construction : 2027
Location : Antibes
Surface : 41m²
Floors : 1
"Carrez" act : 41 m²
Rooms : 2
Orientation : West
Heating access : Common
Type of heating : Heat pump
Hot water access : Collective
Areas
1 Living/dining/kitchen area 28m²
1 Bedroom 9m²
1 Terrace 7m²
Services
Double glazing, Fence, Outdoor lighting, Condominium garden, Disabled access, Optical fiber, Digicode, Intercom, Videophone, Lift
Proximities
Airport, Town centre, Beach, Bus, Golf, Sea, Sea port, On main road



