See all results
Description
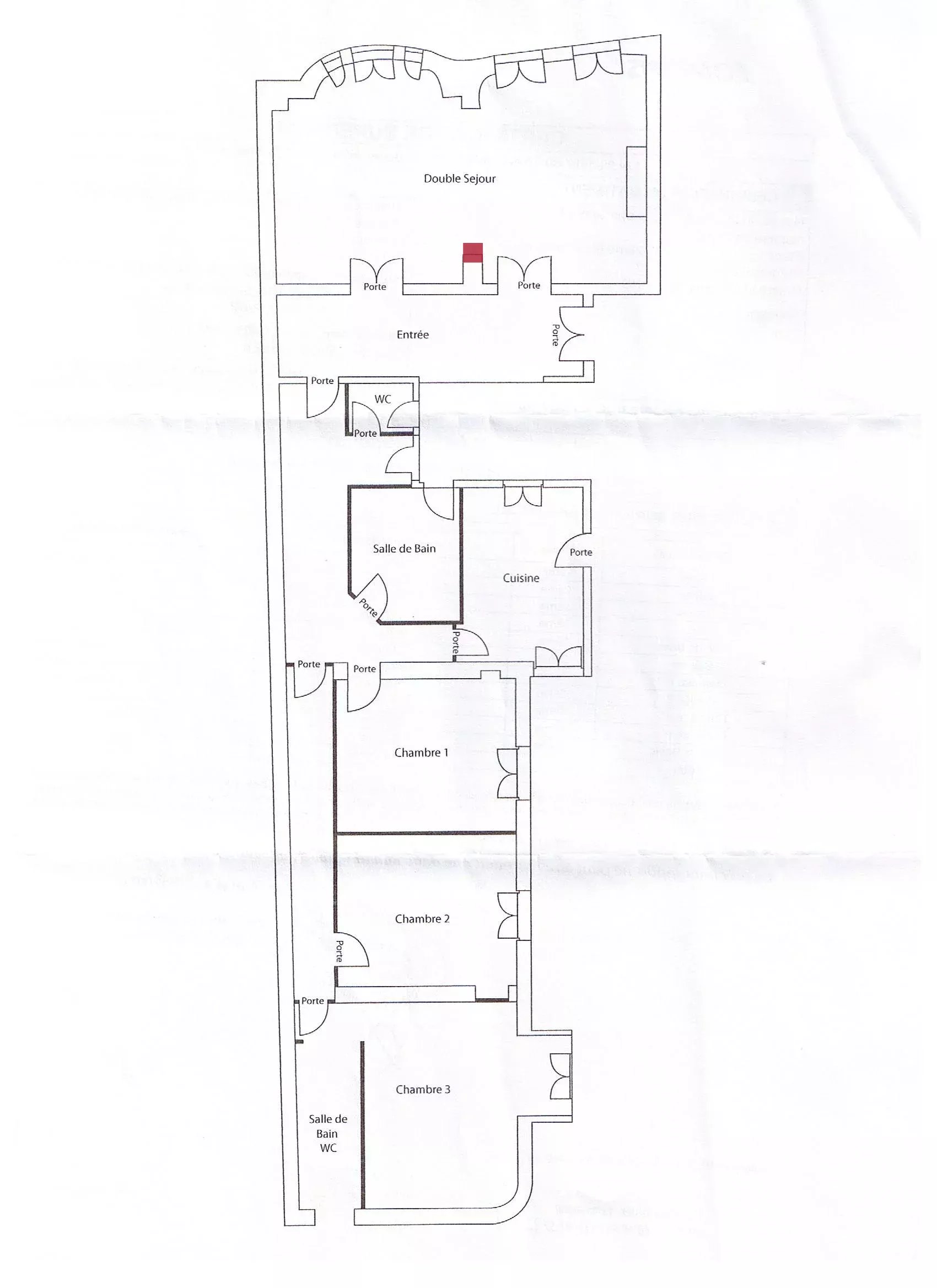
Between Trocadéro and La Muette, on the second floor of a Haussmann building, this 182m² apartment boasts high ceilings and original charm. It comprises an entrance hall, a double living room opening onto a south-west-facing balcony, an office, a separate kitchen, 3 large bedrooms (17, 17 and 24m²), a bathroom and a shower room. 2 WCs. Cellar.Details
Sub-type : Apartment
General condition : Requires updating
Standing : Regular
Location : Paris 16ème
Surface : 182m²
Floors : 2
Rooms : 7
Orientation : West
Heating access : Common
Type of heating : Gas
Heating mechanism : Radiator
Hot water access : Individual
Areas
1 Entrance 14m²
1 Study 9.07m²
1 Double reception room 45.2m²
1 Balcony
1 Corridor 17m²
1 Lavatory 1.8m²
1 Bathroom 8.6m²
1 Kitchen 13m²
1 Bedroom 17.5m²
1 Corridor 9m²
1 Bedroom 17.5m²
1 Bedroom 24m²
1 Shower room / Lavatory 6m²
1 Cellar
1 Bedroom
Services
Fireplace, Lift, Concierge, Caretaker








