3 pièces neuf avec vue mer, balcon et parking, situé sur les hauteurs de Menton

Alpes-maritimes - Appartement

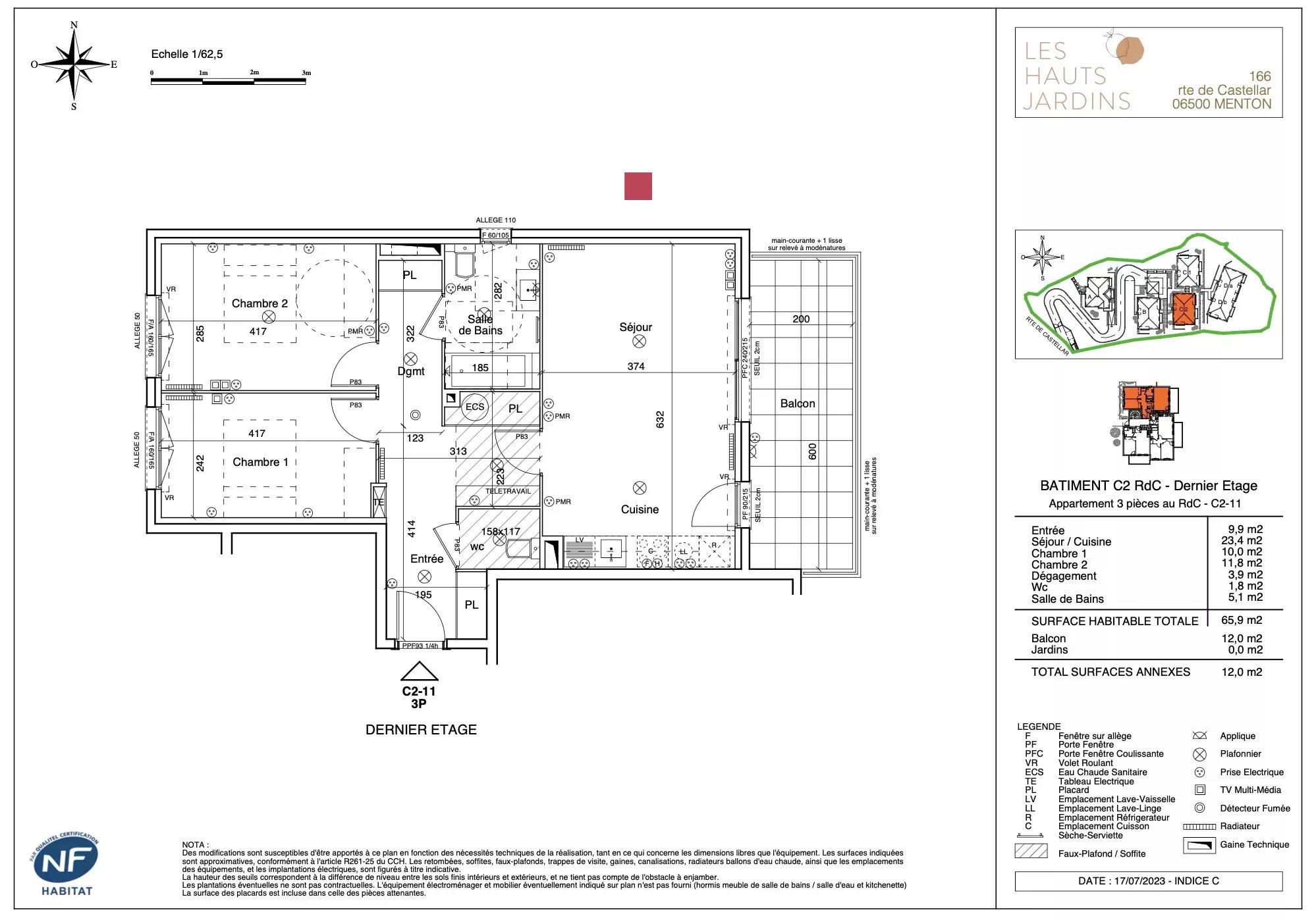
65.9m2, 2 Chambres

REF : C2-11, 19 photos

399 000 € (Honoraires charge vendeur)

Voir tous les résultats

See the 19 photos

See the 19 photos

See the 19 photos

See the 19 photos

See the 19 photos

See the 19 photos

Description

Dernières opportunités - frais de notaire offerts Nichée sur une colline surplombant la Méditerranée, cette résidence vous permettra de découvrir Menton sous son meilleur jour, en bénéficiant d’un environnement résidentiel préservé, à 10 minutes en voiture du centre-ville. Les établissements scolaires de tous niveaux et les commerces sont accessibles en moins de 14 minutes en voiture, et la proximité immédiate du bus 6, au pied de la résidence, vous connecte parfaitement au dynamisme de la ville et de sa région. L’appartement est situé au dernier étage (rez-de-chaussée en hauteur) avec ascenseur. Il se compose de : une entrée, un séjour avec vue mer, cuisine ouverte équipée donnant sur un balcon de 12 m², 2 chambres et une salle de bains avec WC. Une place de stationnement est comprise dans le prix. Solution meublée disponible. Livraison prévue en fin 2026. Idéal pour investissement locatif ou comme pied-à-terre.

ServicesVefa

Marc Foujols Paris Rive Gauche

Détails

Sous-type : Appartement

Etat général : Neuf

Année de construction : 2025

Standing : Standing

Localisation : Menton

Surface : 65.9

Loi Carrez : 65.9

Pieces : 3

Exposition : Est

Accès chauffage : Mixte

Type de Chauffage : Electrique

Mécanisme de chauffage : Radiateur

Accès à l'eau chaude : Collective

Surfaces

1 Séjour/cuisine 23.4m²

1 Chambre 10m²

1 Chambre 11.8m²

1 Balcon 12m²

Prestations

Air conditionné, Borne voiture électrique, Domotique, Double vitrage, Fenêtres coulissantes, Stores électriques, Volets roulants électriques, Abri de voiture, Éclairage extérieur, Jardin en copropriété, Fibre optique, Vidéophone, Ascenseur

Proximities

Autoroute, Bus, Centre ville, Cinéma, Commerces, École primaire, École secondaire, Gare, Gare routière, Gare TGV, Golf, Hôpital/clinique, Médecin, Mer, Parc, Parking public, Piscine publique, Plage, Port, Route principale, Supermarché, Taxi, Tennis, Université

Consommation énergétique

Consommation d'énergie primaire : -2 kWhEP/m².an

Emission de Gaz à effets de serre : -2 kg CO2/m².an

Concerné par un état des Érisques et pollutions : Oui