Voir tous les résultats
Description
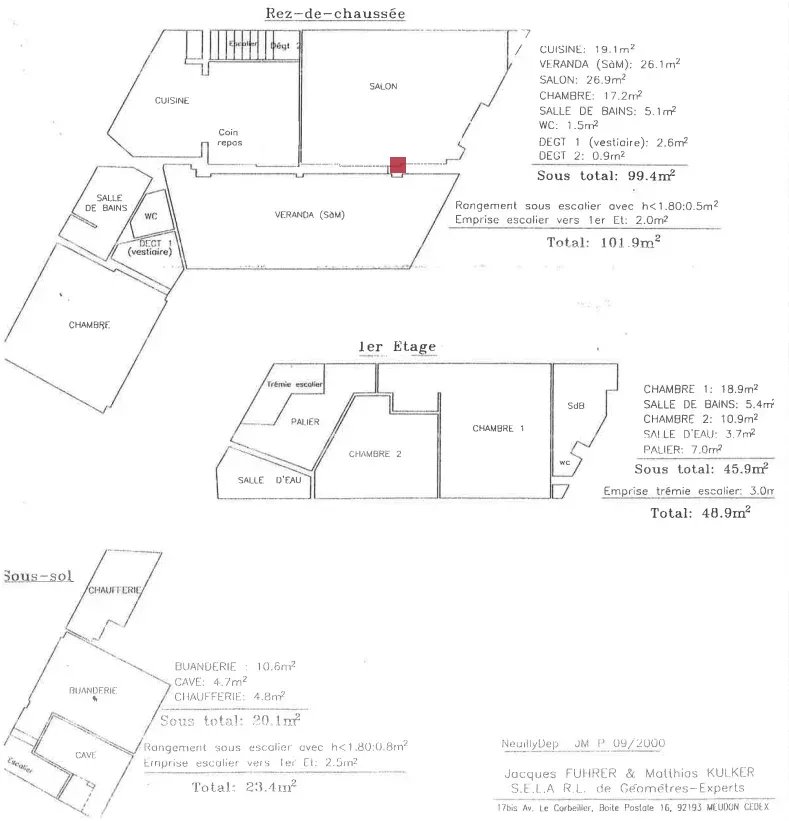
Idéalement situé à Neuilly a deux pas l’hôpital américain, à l'abri des regards, découvrez cette ravissante maison rénovée de 1890 et son jardin arboré de 80m². Elle se compose d'une terrasse donnant accès à une lumineuse véranda, desservant un grand salon avec cheminée, une salle a manger avec sa cuisine ouverte équipée, une chambre indépendante avec sa salle de bains, un toilette invités. A l'étage, une chambre avec sa salle de douche attenante et wc, une suite parentale avec sa salle de douche. Au sous sol, s'ajoute un espace comprenant une buanderie, une cave a vin et une cave. Cette propriété en parfait état et climatisée profite d'un calme absolu sans vis à vis et d'une luminosité rare. Deux emplacements de parkings sont disponibles en sus.Détails
Sous-type : Maison
Etat général : Excellent état
Année de construction : 1890
Standing : Standing
Localisation : Neuilly-sur-Seine
Surface : 170m²
Pieces : 6
Exposition : Sud
Accès chauffage : Collectif
Mécanisme de chauffage : Radiateur
Accès à l'eau chaude : Collective
Surfaces
1 Véranda
1 Salon
1 Séjour
1 Cuisine américaine
3 Chambres
1 Salle de bains / toilettes
2 Salles de douche
2 Toilettes
1 Jardin 80m²
1 Buanderie
1 Cave à vin
1 Cave
1 Terrasse
2 Parkings
1 Terrain 80m²
Prestations
Air conditionné, Borne voiture électrique, Cheminée, Double vitrage, Internet, Stores, Digicode, Interphone, Vidéo surveillance, Stores électriques, Volets roulants électriques, Ascenseur, Alarme
Proximities
Bus, Centre ville, Commerces, École primaire, École secondaire, Gare routière, Hôpital/clinique, Lac, Médecin, Métro, Parc, Parking public, Route principale, Supermarché, Taxi, Tennis, Université




















