Voir tous les résultats
Description
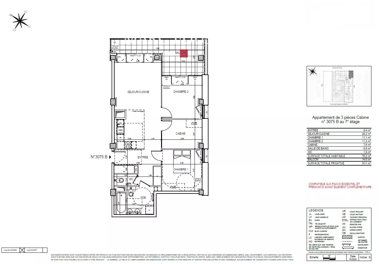
Dans l'un des quartiers les plus tendances de Paris, au cœur de la rive gauche, le 13ème arrondissement est en pleine métamorphose. Située à deux pas de la Seine, découvrez une nouvelle manière de vivre dans cette résidence unique qui vous fera entrer dans le 21ème siècle, grâce à sa haute performance environnementale et les services qu'elle propose. Cet appartement 3 pièces se situe au 7eme étage. Orienté EST, il bénéficie d'une grand balcon de 14,6 m², offrant une vue panoramique sur Paris et la Seine. Il se compose comme suit: ✅ Entrée avec rangement ✅ Séjour avec cuisine ouverte ✅ 2 chambres ✅ Espace bureau ✅ Salle d'eau avec WC ✅ WC séparé ✅ Balcon 📅 Livraison prévisionnelle 4ème trimestre 2027 Autres lots disponibles du studio au 5 pièces, à partir de 349.000 €. Prix direct promoteur, frais d'agence inclus.Détails
Sous-type : Appartement
Etat général : Neuf
Année de construction : 2027
Standing : Grand Luxe
Localisation : Paris 13ème
Surface : 76.2m²
Ètages : 7
Loi Carrez : 76.2 m²
Pieces : 3
Exposition : Est
Accès chauffage : Collectif
Type de Chauffage : Eau chaude
Mécanisme de chauffage : Au sol
Accès à l'eau chaude : Collective
Surfaces
1 Séjour/cuisine 28.2m²
1 Chambre
1 Bureau
1 Balcon 14.6m²
Prestations
Double vitrage, Fenêtre aluminium, Ventilation simple flux, Volets roulants électriques, Clôture, Accès handicapé, Ascenseur, Fibre optique, 145, Digicode, Porte blindée, Vidéophone, Salle de sport
Proximities
Aéroport, Autoroute, Bus, Centre ville, Cinéma, Commerces, Crèche, École primaire, École secondaire, Garderie, Gare, Gare routière, Gare TGV, Golf, Hôpital/clinique, Lac, Médecin, Métro, Palais des congrès, Parc, Parking public, Piscine publique, Port, Route principale, Salle de sport, Supermarché, Taxi, Tennis, Tram, Université
Attributs
9




