Voir tous les résultats
Description
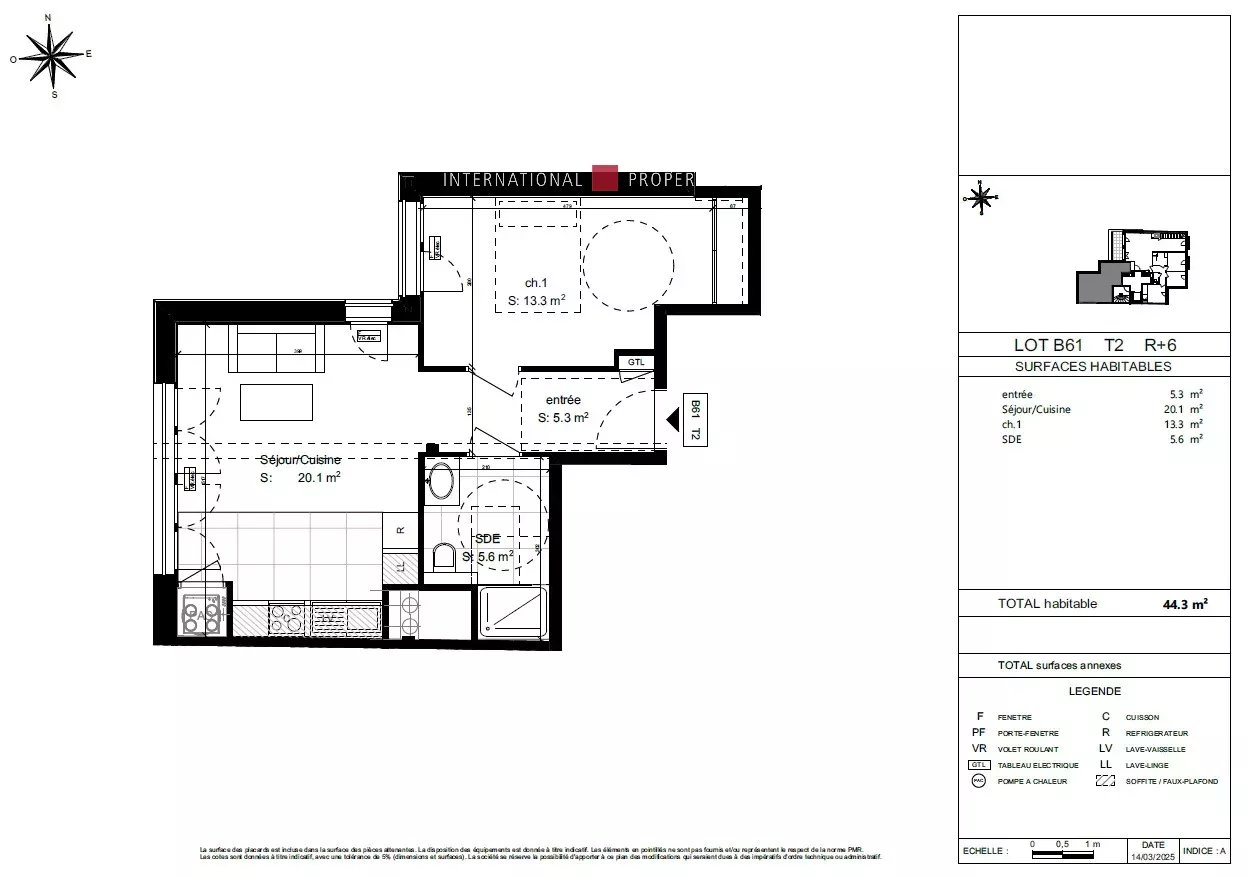
Montmartre... ou comment présenter ce quartier mondialement connu de la Ville Lumière.. Vivre à Montmartre, c’est profiter au quotidien d’un quartier dynamique et accueillant, où vous bénéficierez de commerces de proximité, de marchés traditionnels et de cafés chaleureux, créant un véritable esprit village au cœur de Paris. Venez y découvrir cette nouvelle résidence, à l'architecture contemporaine qui s'intègre avec harmonie dans l'esthétique du quartier. Elle propose des appartements confortables et modernes, aux prestations de qualité. Cet appartement neuf 2 pièces de 44,3 m² se situe au 6ème et dernier étage, et dispose d'une vue directe plein ouest sur le Sacré Cœur pour de magnifiques couchers de soleil. Il se compose comme suit: ✅ Entrée ✅ Séjour lumineux avec cuisine ouverte ✅ Chambre avec placard ✅ Salle d'eau avec WC 📅 Livraison prévisionnelle 3ème trimestre 2027 Autres lots disponibles du studio au 5 pièces, à partir de 408 000 €. Prix direct promoteur, frais d'agence inclus.Détails
Sous-type : Appartement
Etat général : Neuf
Année de construction : 2027
Standing : Standing
Localisation : Paris 18ème
Surface : 44.3m²
Ètages : 6
Loi Carrez : 44.3 m²
Pieces : 2
Exposition : Ouest
Accès chauffage : Individuel
Type de Chauffage : Pompe à chaleur
Mécanisme de chauffage : Radiateur
Accès à l'eau chaude : Individuelle
Surfaces
1 Séjour/cuisine 20.1m²
1 Chambre
1 Salle de douche
Prestations
Double vitrage, Fenêtre aluminium, Stores électriques, Ventilation simple flux, Volets roulants électriques, Accès handicapé, Ascenseur, Fibre optique, 145, Digicode, Vidéophone
Proximities
Aéroport, Autoroute, Bus, Centre ville, Cinéma, Commerces, Crèche, École primaire, École secondaire, Garderie, Gare, Gare routière, Gare TGV, Golf, Hôpital/clinique, Médecin, Métro, Palais des congrès, Parc, Parking public, Piscine publique, Route principale, Salle de sport, Supermarché, Taxi, Tennis, Tram, Université
Attributs
9




