Voir tous les résultats
Description
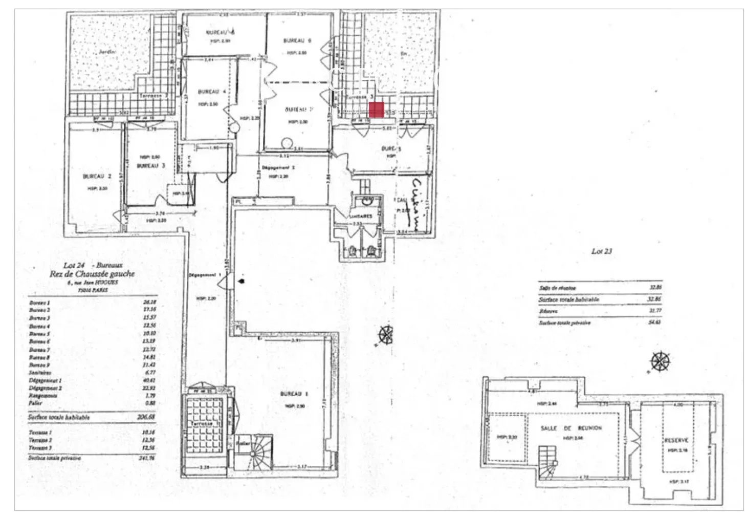
Ces bureaux sont idéalement situés à quelques pas de l'avenue Foch et de la très commerçante avenue Victor Hugo, dans une impasse verdoyante, situé en rez-de-chaussée et sous-sol d'un immeuble récent. Cet espace de bureaux de 259m² Carrez, entièrement climatisés entre l'impasse et trois cours jardin, est accessible par trois entrées dont une entrée privative. Il est composé d'une grande entrée, d'une salle de réunion, de neuf bureaux, d'une cuisine séparée, de sanitaires et ses terrasses verdoyantes. Au sous-sol, deux espaces sous un puit de lumière permettent d'installer une seconde salle de réunion ainsi qu'une surface de stockage importante avec accès indépendant Deux places de parking accessibles par monte-charge sont incluses dans la vente.Détails
Sous-type : Bureau
Etat général : À rafraîchir
Année de construction : 1993
Standing : Standing
Localisation : Paris 16ème
Surface : 259.03m²
Loi Carrez : 259 m²
Pieces : 10
Exposition : Est, Ouest, Sud
Accès chauffage : Collectif
Type de Chauffage : Gaz
Mécanisme de chauffage : Radiateur
Surfaces
1 Bureau 26.38m²
1 Bureau 17.36m²
1 Bureau 15.57m²
1 Bureau 12.56m²
1 Bureau 10.3m²
1 Bureau 13.29m²
1 Bureau 12.72m²
1 Bureau 14.82m²
1 Bureau 13.42m²
1 Toilettes 6.77m²
1 Dégagement 40.82m²
1 Dégagement 22.92m²
1 Terrasse 10.6m²
1 Terrasse 12.36m²
1 Terrasse 12.56m²
1 Salle de réunion 32m²
1 Stock / Réserve 22m²
Prestations
Air conditionné, Internet, Volets roulants électriques, Fibre optique, Digicode, Interphone, Porte blindée, Faux plafond, 148
Proximities
Bus, Centre ville, Commerces, Métro, Parking public, Supermarché, Taxi, Tram, Salle de sport, Tennis, Gare















