Voir tous les résultats
Description
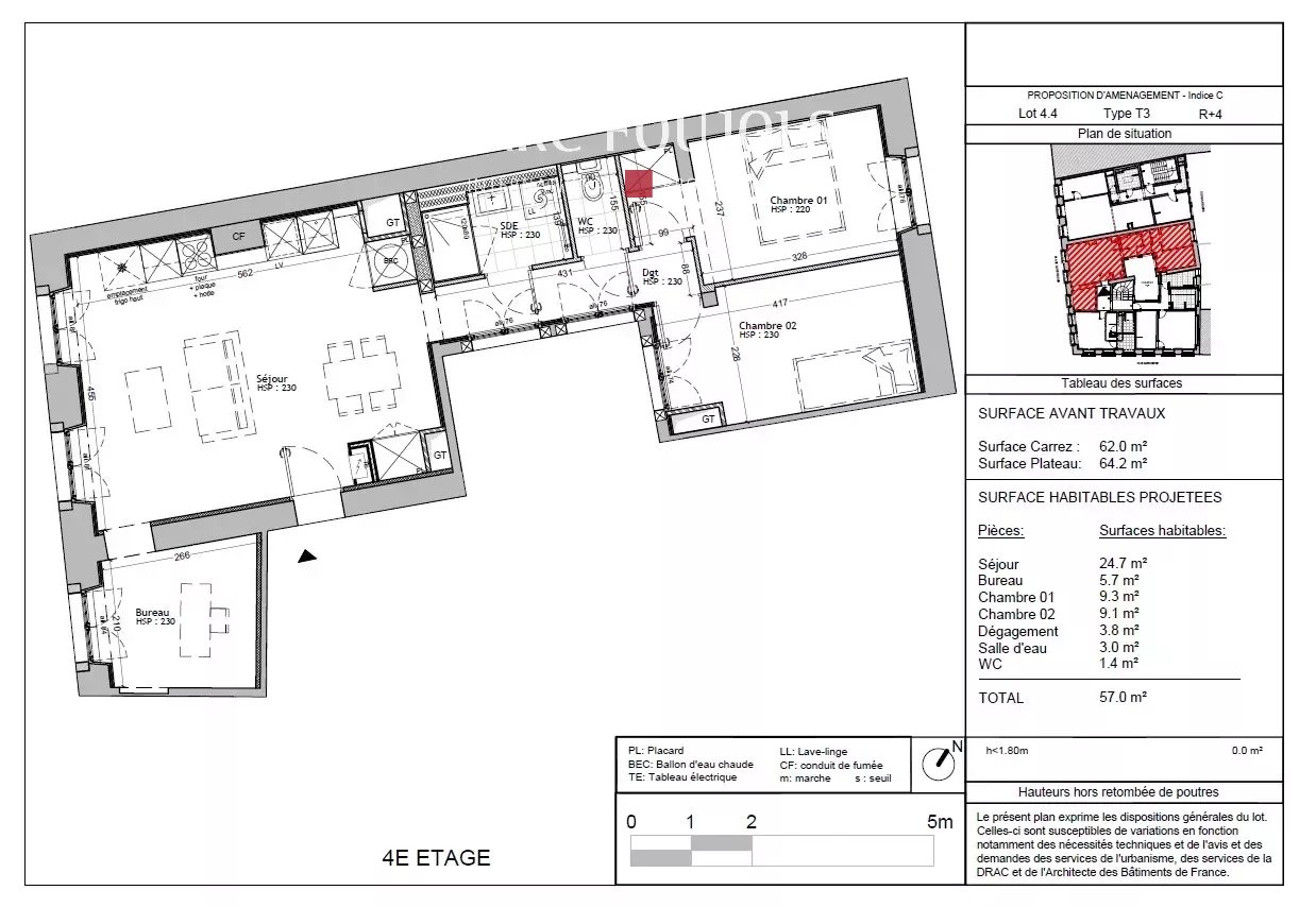
Dans le quartier de la Grande Ile, à quelques pas de la cathédrale et en plein cœur du marché de Noël, venez découvrir cet appartement de 56 m², situé au 4ème étage d'un immeuble en cours de rénovation, et donnant sur la très animée place de Gutenberg. L'appartement se compose comme suit: - séjour avec cuisine ouverte - bureau - deux chambres - salle d'eau et WC séparé Livraison prévisionnelle juin 2026. Autres lots disponibles : 2 à 3 pièces à partir de 443.000 euros. Prix direct promoteur, frais d'agence inclus. Programme éligible au dispositif fiscal MALRAUX, permettant de déduire 30% du montant des travaux de son impôt.Détails
Sous-type : Appartement
Etat général : Neuf
Année de construction : 2026
Localisation : Strasbourg
Surface : 57m²
Ètages : 4
Loi Carrez : 57 m²
Pieces : 3
Exposition : Nord, Sud
Accès chauffage : Individuel
Type de Chauffage : Electrique
Mécanisme de chauffage : Radiateur
Accès à l'eau chaude : Individuelle
Surfaces
1 Séjour/cuisine 24.7m²
2 Chambres
1 Bureau
Prestations
Ventilation simple flux, Fibre optique, 145, Vidéophone
Proximities
Centre ville, Autoroute, Bus, Cinéma, Commerces, Crèche, École primaire, École secondaire, Garderie, Gare, Gare routière, Gare TGV, Golf, Hôpital/clinique, Médecin, Palais des congrès, Parc, Parking public, Piscine publique, Route principale, Salle de sport, Supermarché, Taxi, Tennis, Tram, Université



